DYFT系列金属管浮子流量计是基于浮子位置测量的一种变面积流量仪表。采用全金属结构、Modular 概念设计,具有体积小、压损小、量程比大(10:1)、安装维护方便等特点,广泛应用于复杂恶劣环境下、对小流量、低流速介质的流量测量与过程控制。
DYFT系列金属管浮子流量计,针对不同的用户需求、不同场合,有多种测量形式供用户可选;按输出形式分有就地指示型、远传输出型、控制报警型;按防爆要求分类,又可分为普通型、本质安全型、隔离防爆型三种。
DYFT系列金属管浮子流量计采用了国际先进的Honeywell 无接触检测磁场角度变化的磁测传感器、并配以微处理系统,可实现液晶指示、累积、远传输出(4~20mA)、脉冲输出、上下限报警输出等功能,该型智能信号变送器具有极高的精度和可靠性,完全可以取代进口同类型仪表,且具有性价比高、多参数标定、掉电保护等特点。
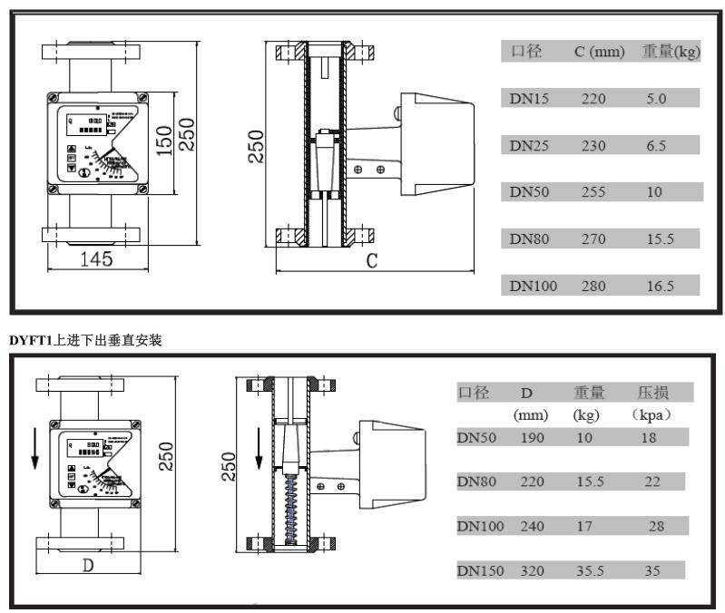
DYFT系列金属管浮子流量计的设计制作还考虑了用户工艺流向要求,分垂直安装式、上进下出安装式、侧进侧出安装式、底进侧出安装式、螺纹连接式、水平安装式等安装方式可选。

一、主要特点
1.模块化组合设计,维修方便,正常使用免维护
2.单轴、非接触新型磁耦合结构,信号传输更稳定
3.双行、大屏幕液晶显示瞬时、累计流量,可带背光
4.智能型具有掉电保护、数据备份及恢复功能
5.全金属结构,抗震、耐压、耐温、防腐
6.短行程、总高250mm,设计安装更方便
二、主要技术参数
测量范围 水(20℃) 6~15000 l/h
空气(0.1013MPa 20℃) 0.05~4000 m
3 /h
量程比 10:1(特殊型20:1)
精度等级 1.5 (特殊型1.0)
工作压力 DN15~DN50 PN4.0MPa (特殊型25MPa)
DN80~DN100 PN1.6MPa (特殊型16MPa)
夹套压力等级:1.6MPa
介质温度 标准型-80℃~+220℃
高温型300℃
衬PTFE 型≤85℃
环境温度 -40℃~+120℃(电远传型≤65℃)
介质粘度 DN15: ≤5mPa.s(H15.1~H15.3)
≤30mPa.s(H15.4~H15.9)
DN25: ≤250mPa.s
DN50~DN150:≤300mPa.s
液晶显示 瞬时流量显示数值范围:0~50000
累积流量显示数值范围:0~99999999
输出 标准信号:二线制4~20mA
脉冲信号:最小间隔50ms
报警信号:集电极开路,(Max)100mA/30VDC 内部阻抗100Ω
供电 标准型:24VDC(10.8VDC~36VDC)
交流型:220VAC(85~265VAC)
电池型:3.6V/4AH 镍氢电池
连接方式 标准型:DIN2501 法兰
特殊型:用户提供法兰标准
螺纹连接型:DIN11851 或用户指定
电气接口 M20×1.5、PG11、1/2”NPT
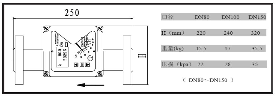
整体高度 标准型:250mm(其他安装方式例外)
三、型号及规格代号












五、附加结构及安装说明
正确选用金属管浮子流量计及附加结构,对于系统的稳定运行及测量精度至关重要。在流量计的选型及安装中应特别注意以下几点:
1) 对于远传输出型金属管浮子流量计的选用,要选择适合使用场所要求的流量计;安装时还应注意仪表上电后的外壳紧固及接线口的密封。
2) 对于被测介质温度过高(>220℃)或过低的场所,通常要对流量计的传感器部分采取保温或隔热措施,为保证信号转换器---指示器正常工作的环境温度,应选择高温指示器。(见图1)
3) 对于有些需采取保温或冷却的被测介质,要选择夹套型流量计。标准金属管浮子流量计的伴热或冷却接口采用DIN2501DN15 PN1.6法兰连接,如需其它法兰或螺纹连接,定货时请注明。
4) 对于流量计入口介质的压力不稳,尤其用于气体的测量,为保证精度和使用寿命,应选用阻尼结构。(见右图2)
5) 对于介质要求的压力等级较高,超过标准压力等级时,在选型时请选择高压型结构,参见高压结构图3。高压型采用HG20595-97 RF带颈对焊钢制管法兰。如采用其它标准,定货时请注明。
6) 流量计安装时要保证测量管的垂直度优于5%,且应加装旁路,便于维护和清洗而不影响生产。
7) 安装流量计的位置应保证入口有≥5DN 的直管段,出口不≤250mm的直管段;如介质中含有铁磁性物质,应在流量计前安装磁性过滤器。
(见磁过滤器及直管段外形尺寸图4)



8) 测控系统中的控制阀,应安装在流量计的下游。用于气体测量时,应保证工作压力不小于流量计压损的5倍,以使流量计稳定工作。
9) 安装流量计前,应将管道内焊渣吹扫干净;安装时要取出流量计中的止动元件;安装后使用时,要缓慢开启控制阀门,避免冲击损坏流量计。
10) 对于标准型、水平安装型金属管浮子流量计可以选择内置磁过滤器。内置磁过滤器的标准型的总高为350mm。
11) 流量计安装示意图


六、信号变送器—指示器
DYFT系列金属管浮子流量计的流量指示与变送由指示器完成。指示器有M1和M2(M3)两种型式(根据指示器内的信号变送器分类)。
M1 型指示器
M1型指示器能实现的功能有:指针就地指示、指针就地指示+4~20mADC远传输出、指针就地指示+上下限报警(控制点可调)。
M1型指示器的电信号远传由指示器内加装的转角变送器将浮子的位置转换成与流量相对应标准信号完成的。
转角变送器技术数据:
电源:12~36(33)VDC 线性度:≤+1%(+0.5%)
电源消耗: ≤30mADC 自身电容:15nF(10nF)
环境温度:-25~+60℃ 温度影响: ≤0.5%/10℃(0.2%/10℃)
防护类别: 负载影响: ≤0.2%
电源影响: ≤0.2% 输出信号:4~20mA 二线制;
自身电感:2mH(50μH) 0~10mA、0~20mA、三、四线制


M1 型指示器的上下限报警由指示器内加装的TG22限位开关完成的。TG22 限位开关由SJ3.5N 型起始器和安装在指针轴上的切割铝片组成。通过改变铝片的位置,可以任意设定限位置。TG22 限位开关与外部的WE77隔离转换放大器(晶体管继电器)配合使用实现上、上限报警信号的远传输出。
注:M1 型指示器的电信号变送输出与限位开关只能任选其一。
K1/K2--代表上/下限报警;K3--代表上下限报警。
TG22 限位开关技术参数
额定电压8VDC 有效面积开≥3mADC
自身电感160μH 自身电容40nF
防护类别IP65 有效面积关≤1mADC
环境温度-25℃~+100℃

DYRFK开关量输入隔离安全栅
(一)主要技术参数
DYRFK开关量输入隔离安全栅
(一)主要技术参数
1.供电电源:24VDC±10% 功耗约 1W
2.响应时间:≤1s 隔离强度: 1500V/min 绝缘电阻:≥100MΩ/500VDC
3.工作温度:0~50℃ 相对湿度:0~95%RH
4.危险区信号:
输入:接近开关,开关触点,工作电压 8V,工作电流 8mA
开关阀值 1.5mA,回滞 0.2~0.4mA
5.安全区信号:
输出:继电器触点信号 ≤250VAC/12VDC ≤2A 开关频率:≤10Hz
6.输入输出特性:
现场开关闭合或输入回路>1.7mA 时,输出晶体管导通,LED 指示灯亮,则输出触点处于闭合状态;
现场开关开路或输入回路电流<1.5mA 时,输出晶体管不导通,LED 指示灯灭,则输出触点处于断开状态。
7.认证参数:
防爆合格证号:32006668 防爆等级标志:[Exia]IIC
最高允许电压 Um:242V 最高开路电压 Uo:12V
最大短路电流 Io:51mA 最大外部电感 Lo:5mH 最大外部电容 Co:1µF
(二)面板说明
●产品机壳材质采用浅黑色硬质耐热耐燃性塑脂压模而成。
●精密电路微电子处理、通道隔离技术、模块化插拔式主机表芯)设计,支持带电热拔插。

1. 上接线端 (蓝色,标号 8/7/6/5)
2. 防爆标识 Ex
3. 电源指示灯
4. 仪表盖
5. 产品制造商标识
6. 下接线端 (标号 1/2/3/4)
7. 主机(模块化表芯)
8. 透气散热孔
9. 产品型号标签
10. 接线端底座
11. 仪表上端安装卡口
12. 安装卡梢

(三)显示与操作说明
1.显示
触点输入状态指示
“ NO ”灯亮:指示触点处于闭合状态。
“ NC ”灯亮:指示触点处于断开状态。
2.操作说明
稍用力从左向外打开表盖(见图)即可见电位器。
用户勿需调节此电位器。
操作注意:禁止强行用力打开表盖,仪表在工作状态中应关闭表盖,以防尘粉进入表芯内部。
(四)安装与接线
1. 外形尺寸和安装(单位:mm)


M2 型智能指示器
M2 型智能指示器能实现的功能有:现场指示型(包括指针、液晶指示瞬时流量;液晶指示累计流量);远传输出型(包括现场指示型+4~20mADC远传输出、现场指示型+上下限报警或脉冲输出等)。现场指示型采用内部电池供电。同时,可选带液晶背光或不带背光显示。
M2 型指示器的上述功能由安装在外壳内的磁传感器、MCU 微处理器及相应的功能电路所构成的HTD 磁测变送器完成,该变送器有一个双行八位LCD 液晶显示屏,只须三键:INC---加键,用于参数的修改和选择;SET---功能键,用于主菜单的循环显示和参数设定值的确认;DEC---减键,用于参数的修改和子菜单的进入,即可完成人机对话。在仪表口径所允许的测量范围内,用户可现场根据工艺参数的变化,进行现场标定。M2 型指示器面板图如下,随版本更新面板将有所不同,届时产品面板以实物为准。

HTD 磁测变送器主要技术指标
1. 指示器液晶显示
瞬时流量显示数值范围为:0~50000
累积流量显示数值范围为:0~99999999
2. 指示器转换精度
瞬时值:1.0%FS±1msd
累积值:1.0%FS±1msd
3. 指示器测量磁场旋转角度最佳为:70°~ 80°,分辨率为0.07°
4. 液晶正常显示环境温度范围为:-25 ℃ ~ 85℃
指示器正常工作环境温度范围为:-40 ℃ ~ 85℃
5. 环境湿度小于90%RH
6. 数据掉电保护时间约为10 年
7. 供电方式:二线制10.8VDC~36VDC
8. 报警方式:集电极开路方式最大电流100mA/30VDC 内部阻抗100Ω
9. 脉冲输出:累积脉冲输出,最小间隔50ms 一个脉冲
10. 充电电池:3AH/3.6V 一组,可用3000~5000 小时(5~6 个月)

